- - - - - - -
J C Radford Site Engineering and Land Surveys Ltd.
Home About Services Contact - Login


Services > Internal Building Plans & Elevations

Image

Whether industrial or residential the extension or conversion of a building provides for a changing requirement without the need to relocate.

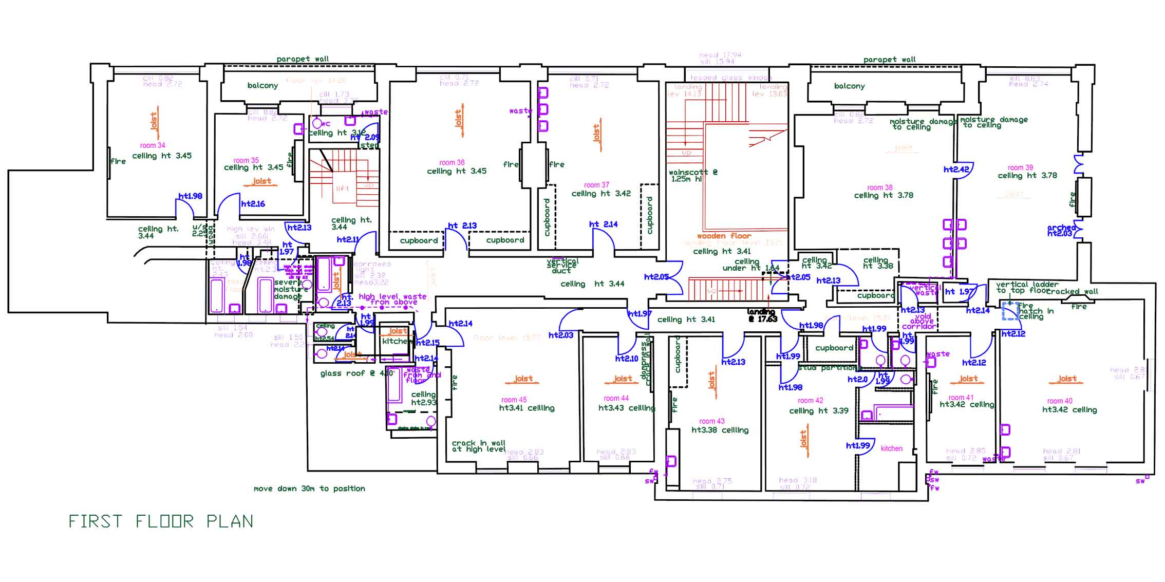
It is essential that the architect begins the design process with plans that portray the original floor layout using accurate measurement to identify the location of walls, stairs, doors, windows & other openings. Floor levels & room heights enable a section through the building to be drawn if required..

If alterations are to include additional structures or changes that affect the exterior of the building then existing external elevations will be required by the planners in order that they can visually compare the impact of the new design with the original.

      Internal Floor Plans      Elevation

 

Site Setting Out